Quadrilocale in vendita

Palermo, Via Montepellegrino - Montepellegrino
€ 198.000
4 locali 4 locali
130 Mq 130 Mq
2 bagni 2 bagni

Quadrilocale in vendita

Palermo, Via Montepellegrino - Montepellegrino

Descrizione annuncio

Al Centro di via Montepellegrino, all’interno di uno degli edifici più eleganti e rappresentativi del quartiere Fiera, caratterizzato da un ampio marciapiede ricco di negozi e attività — tra cui un comodo supermercato — proponiamo un luminoso quadrivani situato al 10° piano (8° più 2 ammezzati) ristrutturato a metà degli anni 90.

La doppia esposizione e il piano alto conferiscono all’immobile una straordinaria luminosità e un panorama aperto. Particolarmente suggestiva la vista dalla cucina, dove cielo e mare si incontrano all’orizzonte e il sole del mattino regala sfumature dorate di grande fascino.

Un valore aggiunto da non sottovalutare: sono disponibili alcuni metri della pavimentazione originale in marmo “quarzite Chocolate brasiliano” (come da foto), un dettaglio prezioso qualora si desideri personalizzare la distribuzione interna mantenendo la pavimentazione esistente e sostituendo solo le parti necessarie.

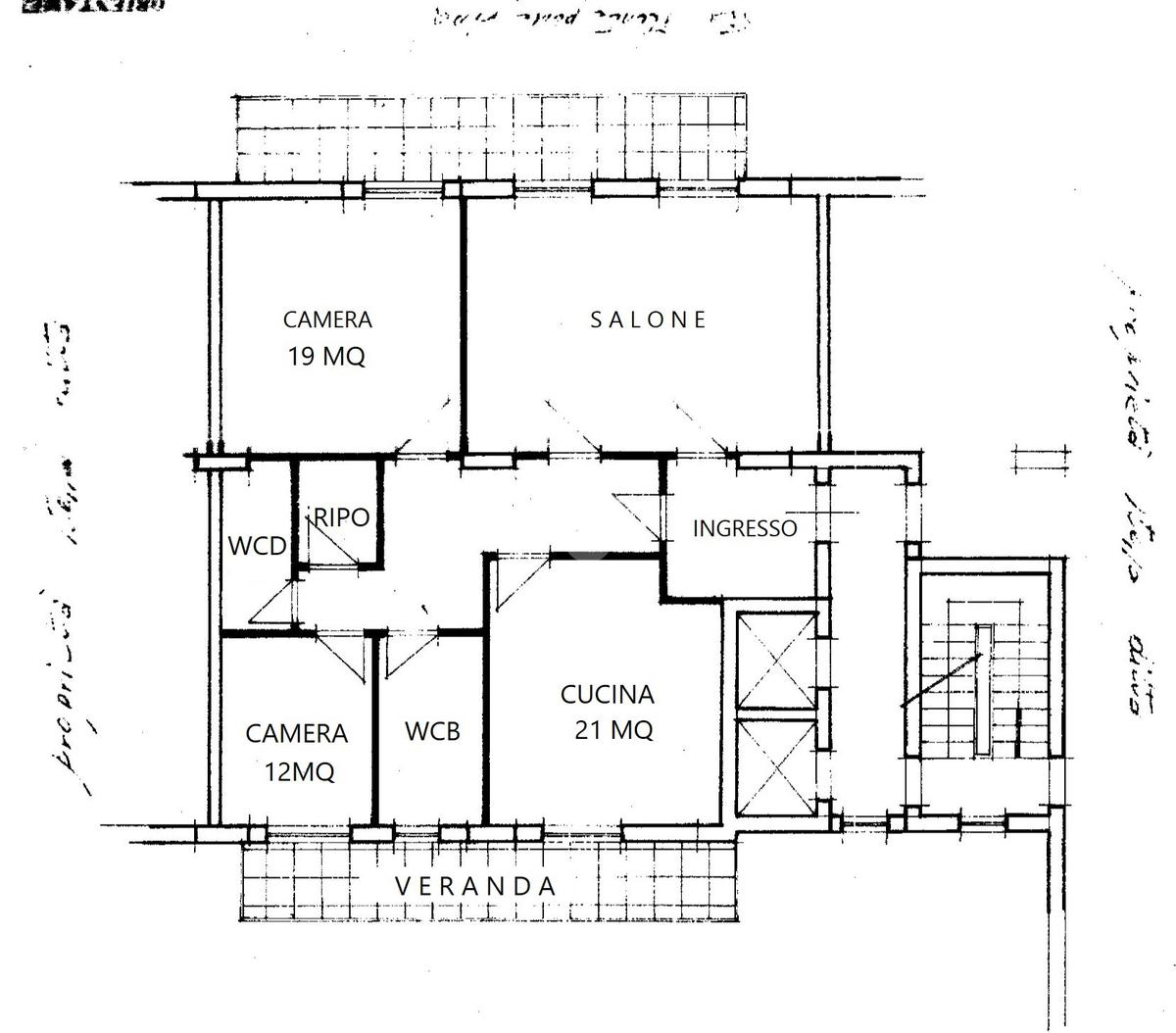
Tutti gli ambienti sono descritti da tramezzi, come nella planimetria allegata; dotato di infissi in alluminio con vetri camera, pompe di calore e riscaldamento autonomo con caldaia a gas. Il condominio dispone inoltre di doppio ascensore e servizio di portierato.

ALCUNE immagini degli interni sono una ricostruzione digitale, fedele nelle dimensioni e nelle proporzioni, ma differente negli arredi.

Per ulteriori informazioni o per fissare un appuntamento di visita, siamo a vostra disposizione ai nostri recapiti.

Mostra tutto

Nelle vicinanze

Trasporto pubblico Trasporto pubblico
Fiera
Fiera
400 m
Imperatore Federico
Imperatore Federico
950 m
Notarbartolo
Notarbartolo
1,7 Km
Respighi/Piazza Ziino
Respighi/Piazza Ziino
2,0 Km
Ammiraglio Rizzo - Generale Cascino
Ammiraglio Rizzo - Generale Cascino
310 m
Ricariche auto elettriche Ricariche auto elettriche
EnelX EVA+ Negozio Enel di Palermo
780 m
CONAD SUPERSTORE Palermo Mandalà | EnelX
2,5 Km
ALD Costa CAR SERVICE PALERMO | ENELX
2,8 Km
Scuole Scuole
Istituto tecnico settore tecnologico "Vittorio Emanuele III"
690 m
Liceo Scientifico Statale "Stanislao Cannizzaro"
720 m
Scuola media Dante Alighieri
780 m
Liceo Classico Giuseppe Garibaldi
890 m
scuola media Giuseppe Garibaldi
960 m
Farmacia Farmacia
Farmacia della Fiera
320 m
Farmacia
380 m
Farmacia
670 m
Farmacia Indelicato
670 m
Farmacia Trapani
830 m
Ospedali Ospedali
Radial - Diagnostica per Immagini
660 m
Ospedale Enrico Albanese
1,5 Km
Centro Traumatologico Ortopedico
1,9 Km
Ospedali Villa Sofia Cervello
2,5 Km
Supermercati Supermercati
Decò
30 m
Sisa Venery
350 m
mercato ortofrutticolo
390 m
Mercato alimentare all'apero in via Montalbo
400 m
Spaccio Alimentare
430 m
Negozi Negozi
Panificio
310 m
Al pane bello
350 m
Pane e pizza
430 m
Dieffemedicali - Medical Store
670 m
Negozi
680 m
Bar Bar
Bar
350 m
Esedra
360 m
Scatassa
410 m
Querida
680 m
Bar Mario
700 m
Ristoranti Ristoranti
Il Giardino
470 m
Burnìa Ristorante - Pizzeria
690 m
Kuletto's
830 m
La Staffa
950 m
Ristorante 131
980 m
Mostra tutto

Caratteristiche

Rif.:
61165289
Piano:
10 di 14 con ascensore (Piano alto)
Balconi:
2
Camere da letto:
2
Condizionamento:
Autonomo
Ascensore:
Mostra tutto
Prezzo Prezzo
€ 198.000
Rata mutuo Rata mutuo
€ 933 / mese
Spese annue Spese annue
€ 900
Proponi il tuo prezzoProponi il tuo prezzo

Classe Energetica

F
F
F
F
F
F
F
F
F
EP globale non rinnovabile:
113.00 kW h/m² anno
EP globale rinnovabile:
107.00 kW h/m² anno
EP invernale del fabbricato:
EP estiva del fabbricato:
Anno di costruzione:
1983
Riscaldamento:
Autonomo
Tipo impianto:
A radiatori
Tipo alimentazione:
Metano

Ti interessa visionare l'immobile?

Fissa un appuntamento  Fissa un appuntamento

Richiedi informazioni

Clicca su Leggi per aprire l'informativa
* Questi campi sono obbligatori

Calcola il tuo mutuo

Semplice e senza impegno
Anticipo

( % )
Mutuo

( % )

pochi semplici passi

inserisci i tuoi dati
Questionario completato
Grazie per aver richiesto un appuntamento senza impegno con un nostro Consulente del Credito e Assicurativo.

Hai inserito correttamente tutti i dati necessari e a breve riceverai una e-mail con un link da convalidare per inviare i tuoi dati.
Affiliato
Immobiliare Don Orione Srl
Via Don Orione, 21 90134 Palermo (PA)

Il nostro staff


  • Luca Chifari
    Affiliato
Via Don Orione, 21 90134 Palermo (PA)
Zona: Montepellegrino-Cantieri-Arenella-Vergine Maria
Mostra su mappa
Orari: Dal lunedì al venerdì dalle 09:00 alle 13:00 e dalle 15:30 alle 20:00. Il sabato dalle 09:00 alle 13:00. Domenica chiusi
Affiliato
Immobiliare Don Orione Srl
Via Don Orione, 21 90134 Palermo (PA)

2026 Tecnocasa Franchising S.p.A. - P. IVA 08365160152 - Via Monte Bianco 60/A 20089 Rozzano (MI). Ogni agenzia ha un proprio titolare ed è autonoma. Privacy policy | Policy utilizzo | Cookie policy