Quadrilocale in vendita

Palermo, Via Palestra - Acquasanta
€ 106.000
4 locali 4 locali
91 Mq 91 Mq
1 bagno 1 bagno

Quadrilocale in vendita

Palermo, Via Palestra - Acquasanta

Descrizione annuncio

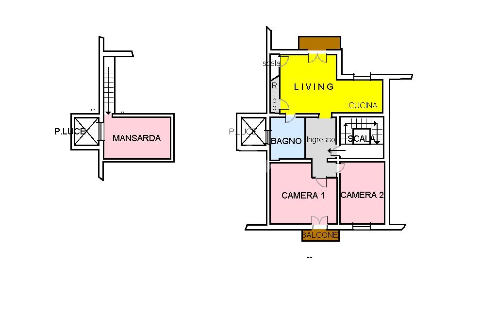
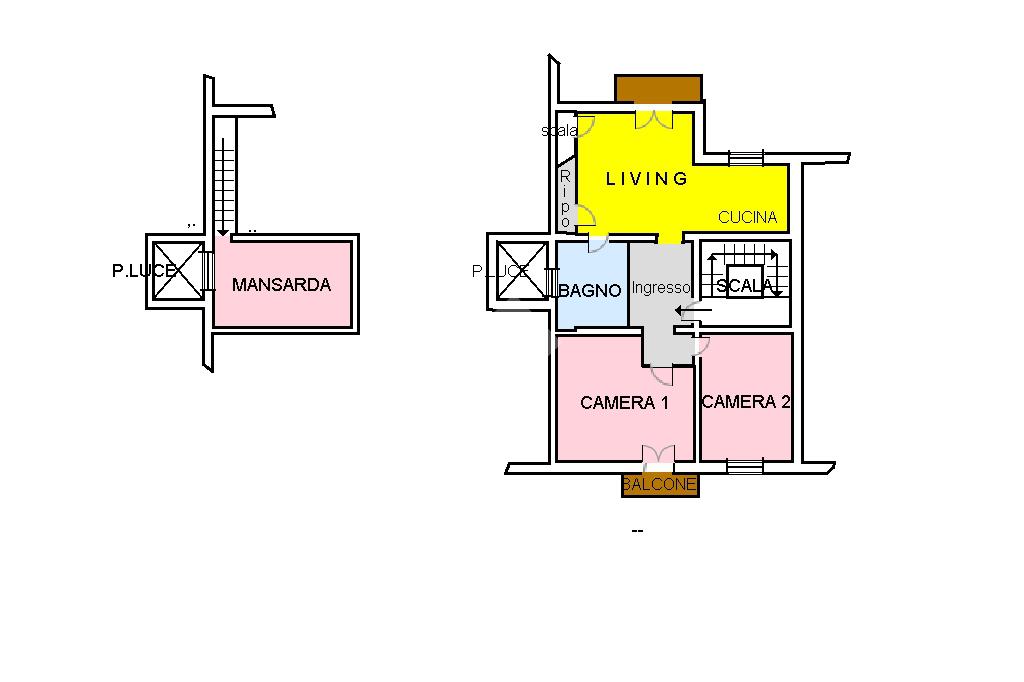
A margine del quartiere Acquasanta, e proprio a confine con Via Ammiraglio RIZZO è ubicato l’immobile che proponiamo.

In ottime condizioni, posto al secondo piano, di un edificio storico del 1930. L'immobile, in vendita, offre un'ampia zona giorno con soggiorno luminoso e una cucina funzionale dotata di ripostiglio e balcone. La disposizione interna comprende tre camere da letto, di cui due al piano principale e una caratteristica mansarda con finestra,(non presente in foto ) ideale per chi cerca uno spazio versatile.

Completano la proprietà un bagno e un secondo balcone, perfetto per momenti di relax all'aperto. L'appartamento è dotato di aria condizionata, garantendo comfort in ogni stagione. La posizione strategica e le caratteristiche dell'immobile lo rendono una soluzione interessante per chi desidera vivere in una zona ben servita di Palermo, senza rinunciare alla tranquillità.

Mostra tutto

Nelle vicinanze

Trasporto pubblico Trasporto pubblico
Fiera
Fiera
1,1 Km
Imperatore Federico
Imperatore Federico
1,5 Km
Notarbartolo
Notarbartolo
2,5 Km
Respighi/Piazza Ziino
Respighi/Piazza Ziino
2,8 Km
Ammiraglio Rizzo - Calcedonio
Ammiraglio Rizzo - Calcedonio
60 m
Ricariche auto elettriche Ricariche auto elettriche
EnelX EVA+ Negozio Enel di Palermo
1,6 Km
Scuole Scuole
Scuola media Dante Alighieri
390 m
Istituto tecnico settore tecnologico "Vittorio Emanuele III"
1,5 Km
Liceo Scientifico Statale "Stanislao Cannizzaro"
1,5 Km
Liceo Classico Giuseppe Garibaldi
1,7 Km
scuola media Giuseppe Garibaldi
1,7 Km
Farmacia Farmacia
Farmacia della Fiera
720 m
Farmacia
1,1 Km
Farmacia Bosco
1,2 Km
Farmacia
1,5 Km
Farmacia Indelicato
1,5 Km
Ospedali Ospedali
Ospedale Enrico Albanese
670 m
Radial - Diagnostica per Immagini
1,5 Km
Centro Traumatologico Ortopedico
2,3 Km
Ospedali Villa Sofia Cervello
2,8 Km
Supermercati Supermercati
Ard discount
440 m
Spaccio Alimentare
470 m
Sisa Venery
470 m
Decò
840 m
Mercato alimentare all'apero in via Montalbo
900 m
Negozi Negozi
Al pane bello
580 m
Panificio
650 m
Pane e pizza
1,1 Km
Negozi
1,1 Km
Dieffemedicali - Medical Store
1,5 Km
Bar Bar
Scatassa
470 m
Esedra
610 m
Bar
950 m
Bar Mario
1,2 Km
Querida
1,5 Km
Ristoranti Ristoranti
La Staffa
190 m
Il Giardino
740 m
Burnìa Ristorante - Pizzeria
1,5 Km
Kuletto's
1,6 Km
Mudù
1,7 Km
Mostra tutto

Caratteristiche

Rif.:
61086963
Piano:
2 (ultimo Piano)
Balconi:
2
Camere da letto:
3
Arredamento:
Assente
Condizionamento:
Autonomo
Mostra tutto
Prezzo Prezzo
€ 106.000
Rata mutuo Rata mutuo
€ 486 / mese
Spese annue Spese annue
€ 150
Proponi il tuo prezzoProponi il tuo prezzo

Classe Energetica

F
F
F
F
F
F
F
F
F
EP globale non rinnovabile:
87.00 kW h/m² anno
EP globale rinnovabile:
97.00 kW h/m² anno
EP invernale del fabbricato:
EP estiva del fabbricato:
Anno di costruzione:
1930
Riscaldamento:
Assente

Ti interessa visionare l'immobile?

Fissa un appuntamento  Fissa un appuntamento

Richiedi informazioni

* Questi campi sono obbligatori

Calcola il tuo mutuo

Semplice e senza impegno
Anticipo

( % )
Mutuo

( % )

pochi semplici passi

inserisci i tuoi dati
Questionario completato
Grazie per aver richiesto un appuntamento senza impegno con un nostro Consulente del Credito e Assicurativo.

Hai inserito correttamente tutti i dati necessari e a breve riceverai una e-mail con un link da convalidare per inviare i tuoi dati.
Affiliato
Immobiliare Don Orione Srl
Via Don Orione, 21 90134 Palermo (PA)

Il nostro staff


  • Luca Chifari
    Affiliato
Via Don Orione, 21 90134 Palermo (PA)
Zona: Montepellegrino-Cantieri-Arenella-Vergine Maria
Mostra su mappa
Orari: Dal lunedì al venerdì dalle 09:00 alle 13:00 e dalle 15:30 alle 20:00. Il sabato dalle 09:00 alle 13:00. Domenica chiusi
Affiliato
Immobiliare Don Orione Srl
Via Don Orione, 21 90134 Palermo (PA)

2025 Tecnocasa Franchising S.p.A. - P. IVA 08365160152 - Via Monte Bianco 60/A 20089 Rozzano (MI). Ogni agenzia ha un proprio titolare ed è autonoma. Privacy policy | Policy utilizzo | Cookie policy